20_01_ MAR
MARÉS DE PLA. PROPOSTA DE CONCURS DE 36 HPO A PALMA
MARÉS DE PLA. PROPOSTA DE CONCURS DE 36 HPO A PALMA
És en aquest lloc privilegiat i amb un fort context
històric industrial on es situa el nou edifici d’habitatges.
Aquest es formalitza a través d’una façana exterior portant de marés de pla que reinterpreta el ritme de les pilastres de la façana lateral de Can Ribes.
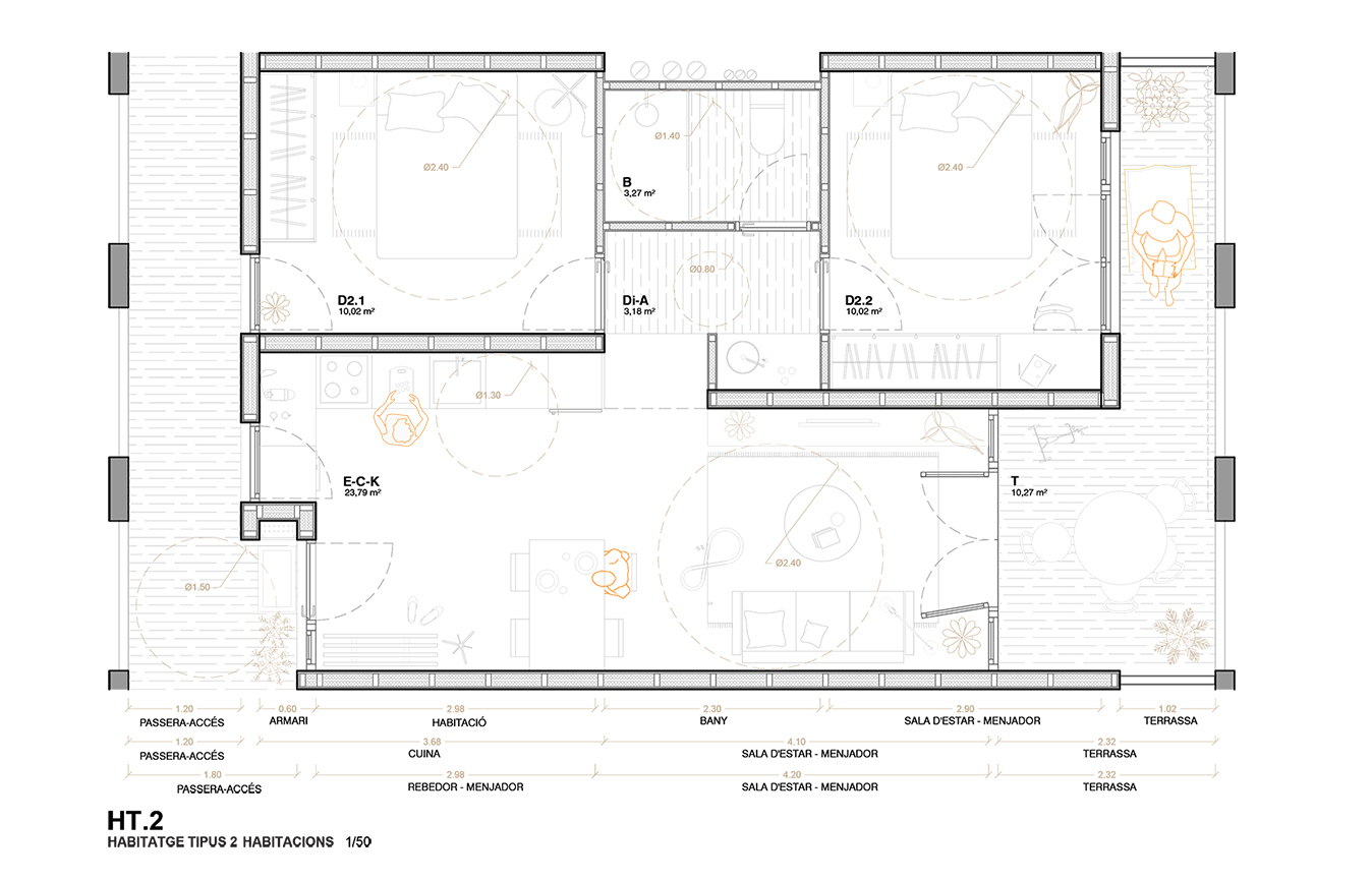
Els habitatges passants es disposen en orientació estoest.
Una passera protegida i orientada a oest dona accés als habitatges quedant tots els habitatges orientats
a est i amb vistes al passeig i a la fàbrica de Can Ribes.
Un sistema constructiu amb fusta permet minimitzar els
costos energètics de la construcció i ajuda a alleugerir
l’edifici.
L’edifici fomenta els espais comunitaris(coberta i planta
semi-soterrani) i proposa una reducció de places d’aparcament en pro dels espais comuns tot i que si
poden ubicar les places d’aparcament exigides.
Localització/ Palma, Mallorca.
Superficie/ 3.658m2
Client/ Ibavi
Any/ 2020
Projecte amb col·laboració de La Boqueria, Munarq i Maria Camprodón






